您的位置: 首页 > 球速官网 > 球速体育APP

30万城里首付 农村全三层豪华农村自建房别墅经典好别墅户球速体育- 球速体育官方网站- APP下载型

发布日期:2026-01-17 12:13:10 浏览次数:

  球速体育,球速体育官方网站,球速体育APP下载以前听到很多想回家建房的朋友说,现在在农村建房子有很多限制,楼层的高度限制,宅基地大小限制,就算有时建好了,还要要被强拆。我们虽然不能改政策,那我们只能在现有的条件上好好利用自家宅基地了。所以小户型别墅在农村建房中是最受欢迎的,很多农村地区宅基地的使用面积有限,建个小户型既实用,又能节省造价。2栋经典好别墅户型,三层户型中的佼佼者,爸妈看中了最后一款

  此款别墅占地规整,三层设计有效利用宅地面积,多边形采光窗,是别墅亮点,丰富了建筑立面语言的同时,也更好地优化了采光。

  整体设计精致巧妙,内设5卧2客厅双露台等,另外还根据农村居住习惯设有堂屋神位,将品质生活与传统习俗相结合,适合广大地区建造。

  本套图纸有施工图66张,效果图1张,包打印(效果图为彩图,施工图为A3大图),快递包邮,无电子版

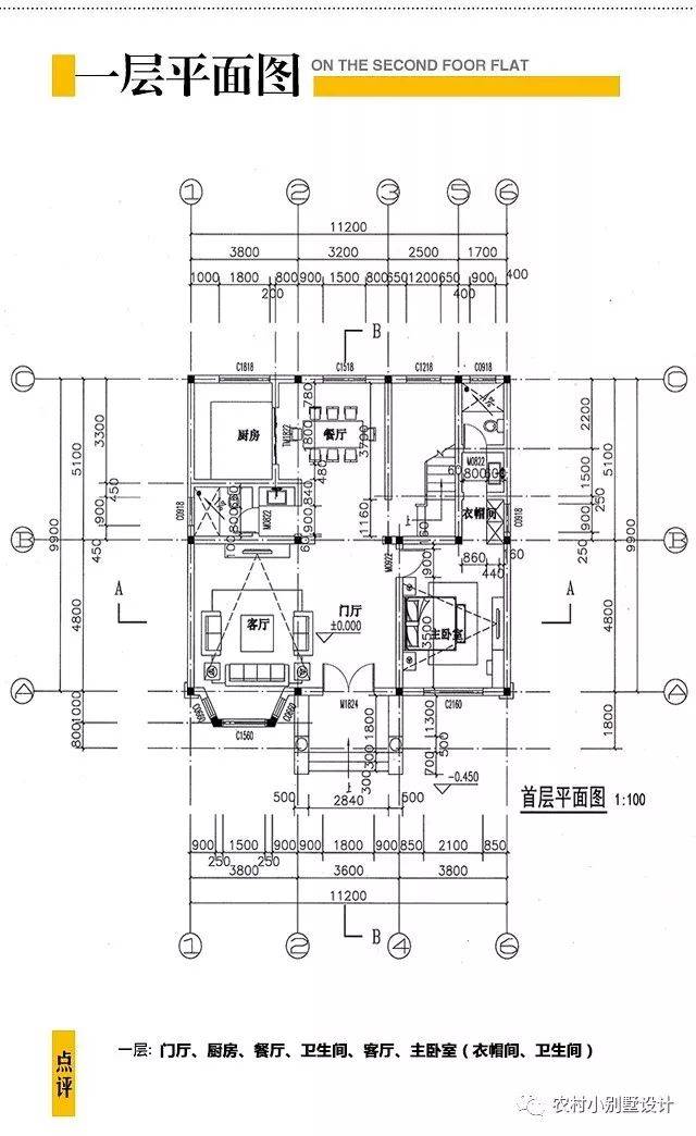
  一层平面图,从大门进去就是堂屋,左边是客厅,右边是卧室和厕所,在往里有一个储藏室,一个卫生间,一个厨房和一个餐厅。

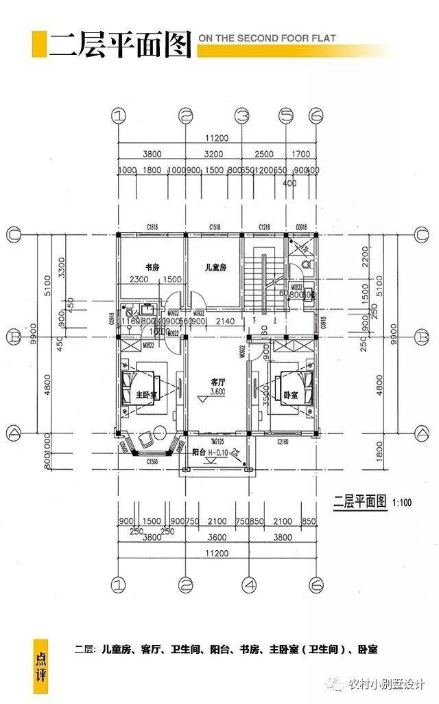
  二层平面图,二楼有三个卧室,一个主卧室,两个次卧,还有一个厨房,两个卫生间,一个客厅和一个阳台。

  三层平面图,三楼有一个卫生间,一个休息室,一个活动室和两个大的露台。大家觉得这三款别墅怎么样呢?造价只要30万,还带车库是不是非常物超所值呢。

  本套图纸有施工图66张,效果图1张,包打印(效果图为彩图,施工图为A3大图),快递包邮,无电子版

  本套图纸有施工图42张,效果图1张,包打印(效果图为彩图,施工图为A3大图),快递包邮,无电子版

  二层平面图 四房一厅,主卧带有卫生间,书房在儿童房旁边,利于孩子学习,养成一个好习惯。

  本套图纸有施工图58张,效果图1张,包打印(效果图为彩图,施工图为A3大图),快递包邮,无电子版

  想要以上别墅全套施工图纸还是想要根据您的地基及要求来定制设计独一无二的个性化别墅大宅?请加我们微信号

  ,全套图纸包含完整效果图预览,房屋平面设计、结构设计、建筑设计、水电设计以及各个细微部分的设计,图纸拿给施工人员即可立即施工。