您的位置: 首页 > 球速官网 > 球速体育APP

球速体育- 球速体育官方网站- APP下载永泰三里城售楼处首页-永泰三里城售楼处电话-开盘时间-房价-户型-楼盘详情-周边环境-户型-价格-地址-楼盘详情

发布日期:2026-01-17 18:22:15 浏览次数:

  球速体育,球速体育官方网站,球速体育APP下载浦东新区三林社区Z000701单元15-15A地块(“城中村”改造项目——三林镇金光村地块)。

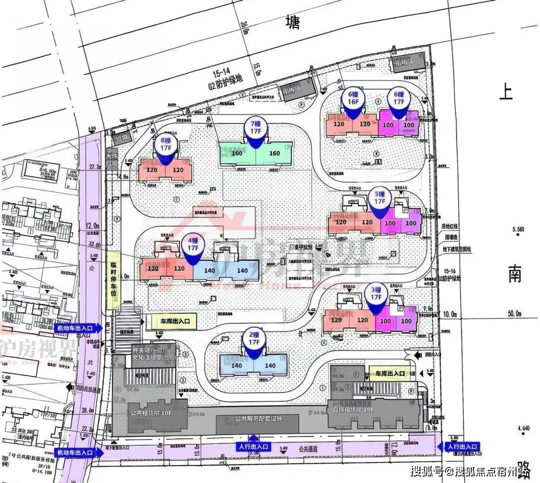
  该项目容积率2.0,拟建7幢17层高层商品住宅、1幢19层自持租赁房、1幢10层公共租赁(保障房),以及3层配套公建用房等

  该地块坐落于浦东三林板块,其主要优势在于交通条件优越,距离地铁11号线米,一站前滩太古里。

  这个项目占地差不多27116㎡,房子不会建得很密,容积率是2.0,最高只能盖到60米高,全部为17F的高层住宅,算下来计容面积大概54232㎡

  按照要求,要拿出15%的房子作为自持租赁住房 ,而且中小套户型要占70%以上,所有房子交房的时候都是装修好的,不用自己再操心装修的事。

  听说二期全是17层的高楼,户型面积有大有小,不管你是手头不宽裕的刚需购房者,还是想换个大房子改善居住条件,都能找到合适的。

  不过可卖的房子不多,还不到400套。和一期相比,二期各方面都有提升,户型设计得更优!

  ☑️☑️永泰三里城售楼处电线日,浦东新区规划和自然资源局公示了三林社区Z000701单元15-15A

  15-15A地块,预计8-9月份推出,仅372套可售住宅,价格待定......

  地块位于浦东三林板块核心。总用地面积约2.71万㎡,总建筑面积约9.32万㎡,容积率2.0

  60米,绿地率35%。方案显示,拟建7幢17F高层住宅、1幢19F自持租赁房、1幢10F保障房及5400㎡社区配套用房

  该地块为三林镇金光村“城中村”改造的重点项目,紧邻地铁11号线米宽公共步行通道,连接社区与地铁站;同时周边有中房金谊广场、三林中学、东方医院等生活配套。

  项目二期主推320套房源,建面约99-151㎡高层,建面约-241㎡洋房/叠加,过会均价约8.2万/㎡。

  总价600-800万之间,当下热门板块无外乎唐镇、高行等板块,中外环仅能选择更为偏远的御桥、外高桥等区域。

  永泰三里城位于三林板块腹地,区域内三林滨江、筠溪小镇、新杨思都属于浦东金色中环带上的重要组成部分。

  项目3公里以内就涵盖了前滩、三林滨江、新杨思等浦东重量级板块,近享世纪规划红利。

  前滩中央商务区的居住需求势必会外溢,三林滨江自身拥有低密、宜居的属性,中央商务区+低密居住区的黄金组合,将三林滨江的价值高度推向顶峰。

  三林滨江的热度有目共睹,住宅价格在10万/㎡+,别墅价格高达13.38万/㎡,且板块价值已深入人心。

  性价比就凸显出来了!永泰三里城高层前期均价仅约7.8万/㎡,洋房&叠加约8.6万/㎡,无疑是整个浦东,乃至上海中外环的价格洼地!

  事实上,三林滨江在空间上与前滩更为贴近,但永泰三里城在时间距离上更占优势。

  不仅如此,项目周边拥有中环、南北高架、外环、杨高南路等主干道,自驾前往浦西市区、陆家嘴、张江等都非常便利。

  与规划中的三林滨江截然不同,永泰三里城所在的三林社区,是三林现有居住氛围更为成熟的片区,周边城市资源已然非常醇熟。

  更难能可贵的是,项目是超30万方河滨大城,周边皆是规划住宅用地,等整体建成后,将大幅度提升周边城市界面。

  项目周边有比较成熟的学校和商业配套,比如中房金谊广场、新达汇·三林、上海三林中学、上海市育人中学等。

  这里有前滩太古里、前滩31、浦发银行东方体育中心、前滩休闲公园、前滩体育公园、前滩友城公园等。

  所以,近享前滩+新杨思规划红利,价格更为亲民的永泰三里城,是浦东刚改、改善客户的不二之选!

  项目容积率仅2.0,是上海中外环相当臻稀的双面滨河、低密社区,规划有16-19层高层,6层电梯洋房。

  ,北侧、东侧皆是天然河道,整体的居住环境静谧。光这个地块天赋,在市场上就鲜有对手。

  其次,项目南侧临近永泰路的地方,打造了2栋社区配套建筑,将用作社区食堂、恒温泳池、健身房

  品质感拉满。首层入户大堂,石材搭配金属装饰条的地面、墙面,空间宽敞气派,质感十足。

  ,为业主们带来高品质物业服务。仁恒的物业服务水准业内外的认可度都非常高,荣膺中国金钥匙6S管理创新奖、中国物业管理综合实力百强等诸多殊荣。

  所以,整个社区从地块天赋、颜值,到自带恒温泳池,再到低密宜居的居住条件,都算的上尤为出众。

  永泰三里城二期主推320套房源,建面约99-151㎡高层,建面约140-241㎡洋房/叠加。

  整个社区并没有小户型,整体的圈层高度统一,为业主营造了非常优秀的改善居住环境。

  。更高的层高意味着更宽阔的居住空间,也意味着投入更多的建筑成本,这背后是开发商不惜代价为业主一步到位的考量。

  一般来讲都是建筑面积约8㎡,如果不封阳台,那面积只算一半,相当于给买家足足省了约4×8.2≈32.8万元。

  ,是国内绿色建筑高标准,健康主导之上,起到降噪、少尘等的防护效果,细节考究品质有保障!项目装修标准也是诚意满满,中央空调、地暖、新风系统

  “三大件”配齐,厨房、卫浴也有不少细节交付标准。总的来说,永泰三里城咫尺前滩+新杨思,在区位优势如此明显的情况下,交出了诚意十足的产品,无需迟疑,买就对了!

  总价600-800万之间,当下热门板块无外乎唐镇、高行等板块,中外环仅能选择更为偏远的御桥、外高桥等区域。

  永泰三里城位于三林板块腹地,区域内三林滨江、筠溪小镇、新杨思都属于浦东金色中环带上的重要组成部分。

  项目3公里以内就涵盖了前滩、三林滨江、新杨思等浦东重量级板块,近享世纪规划红利。

  三林滨江的热度有目共睹,住宅价格在10万/㎡+,别墅价格高达13.38万/㎡,且板块价值已深入人心。

  永泰三里城高层前期均价仅约7.8万/㎡,洋房&叠加约8.6万/㎡,无疑是整个浦东,乃至上海中外环的价格洼地!

  事实上,三林滨江在空间上与前滩更为贴近,但永泰三里城在时间距离上更占优势。

  与规划中的三林滨江截然不同,永泰三里城所在的三林社区,是三林现有居住氛围更为成熟的片区,周边城市资源已然非常醇熟。

  更难能可贵的是,项目是超30万方河滨大城,周边皆是规划住宅用地,等整体建成后,将大幅度提升周边城市界面。

  项目周边有比较成熟的学校和商业配套,比如中房金谊广场、新达汇·三林、上海三林中学、上海市育人中学等。

  这里有前滩太古里、前滩31、浦发银行东方体育中心、前滩休闲公园、前滩体育公园、前滩友城公园等。

  近享前滩+新杨思规划红利,价格更为亲民的永泰三里城,是浦东刚改、改善客户的不二之选!

  平台声明:该文观点仅代表作者本人,搜狐号系信息发布平台,搜狐仅提供信息存储空间服务。